
We supply security palisade fence system designed for substation and utility perimeter protection. Typical fencing system is constructed with 'W' steel pales with triple-point spear tops and vehicle gates and pedestrian gates.
Palisade fene with w section pales and triple pointed tops offers anti climbing protection while the security gates provides controlled access for substations and other high-risk utility facilities.
Palisade Pales
'W' cold rolled pales 71 mm wide × 3 mm thick
Material: Cold rolled steel
Top: Triple point spear top
Substation Security Fence:

Rails and post
Rails: 65×50×6 UA, 2720 long
Rail punching: 26 × Ø10 holes (central) @ 103 CRS
Posts: 150 UC 23.4 post
Fixings (anti-tamper)
Pales fixed using M8×40 Grade 8.8/S cup head bolts, with M8 shear nuts & washers
Finish: All fence and gate components shall be painted black.
Vehicle Swing Gate (Medium Security Palisade Vehicle Gate)
Vehicle Swing Gate illustration:
Medium security palisade vehicle swing gate
Clear opening: approx. 7,500 mm
Overall gate length: approx. 7,950 mm
Gate height: approx. 2,900 mm
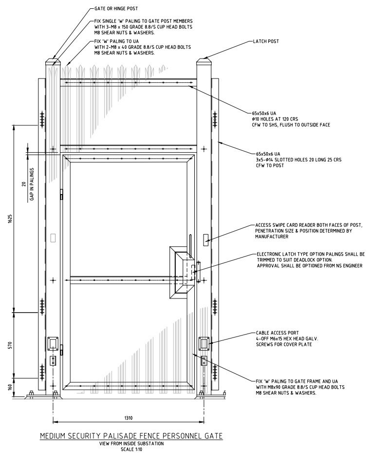
Pedestrian Gate (Palisade Fence Personnel Gate)
Pedestrian Gate Illustration:

Palisade Panels 2700 wide
Gates: Single Gates, set off Double Gates
Finish: Galvanized and Powder coated Black
Gates shall open inwards.
Hinges shall prevent outward swing.
All gate components shall be painted black.
Gate posts (hinge & latch posts)

Post section: 125×65 SHS, 2740 long
3 × Ø10 holes (latch & hinge posts)
Hinges: 2-off galvanised LH bolt-on bearing hinges, 25 mm thick, welded on hinge post only
Baseplate
290×290×16 baseplate
FPBW to SHS
4 × Ø22 holes, 230 sq.
Door stop & electronic latch penetration (latch post only)
25×5 flat, 125 mm long door stop – latch post only
Electronic latch option penetration – latch post only
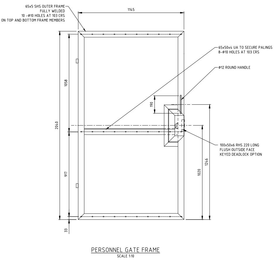
Gate Frame

Outer frame
65×5 SHS outer frame, fully welded
10 × Ø10 holes @ 103 CRS in top and bottom frame members
Palisade fixing rail on gate
65×50×6 UA to secure palings
8 × Ø10 holes @ 103 CRS
Handle & lock option: Ø12 round handle
100×50×6 RHS, 220 long, flush outside face – keyed deadlock option
Palisade attachment on the pedestrian gate
Fix single 'W' paling to gate post members with 3-M8×150 Grade 8.8/S cup head bolts, plus M8 shear nuts & washers
Fix 'W' paling to UA with 2-M8×40 Grade 8.8/S cup head bolts, plus M8 shear nuts & washers
Fix 'W' paling to gate frame and UA with M8×90 Grade 8.8/S cup head bolts, plus M8 shear nuts & washers
Cable access port (for electronic lock )
Cable access port with 4-off M6×15 hex head galvanised screws for cover plate
Palisade Fences Finishes
High Security Palisade Fence Systems
31 Xinjie, Development Area, Dezhou, China www.palisadefence.net sales@palisadefence.net
Copyright © 2020. Tripline Palisade Fence Co.